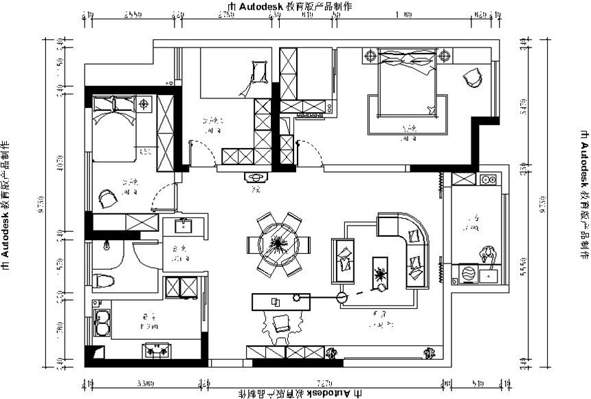
紫御府
施工面积:138平方
设计风格:现代
设计理念:
预约设计师
我也要设计成这样
预约整装设计方案服务
*已有【5623】人成功预约







上一个案例:






